Our work speaks for itself.

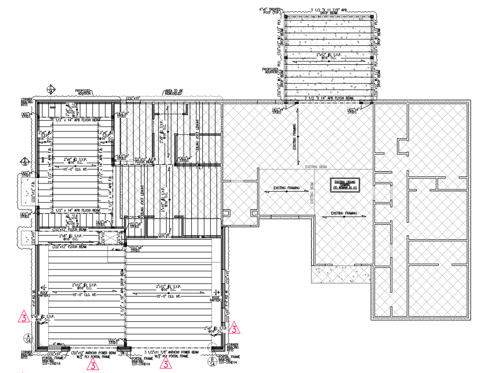
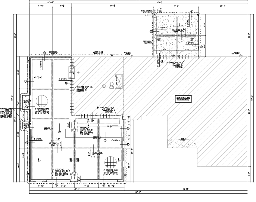
This residential remodel project involved a combination of selective demolition and new construction to reconfigure and expand the existing home. Our scope included architectural and structural design services to support the added living area while ensuring seamless integration with the existing structure. The design addressed structural modifications, load path continuity, and code compliance, resulting in an updated layout that improved functionality while maintaining the character of the home.

Previous
Previous

Mexican Fast-Casual Restaurant – Tampa, Florida