Our work speaks for itself.

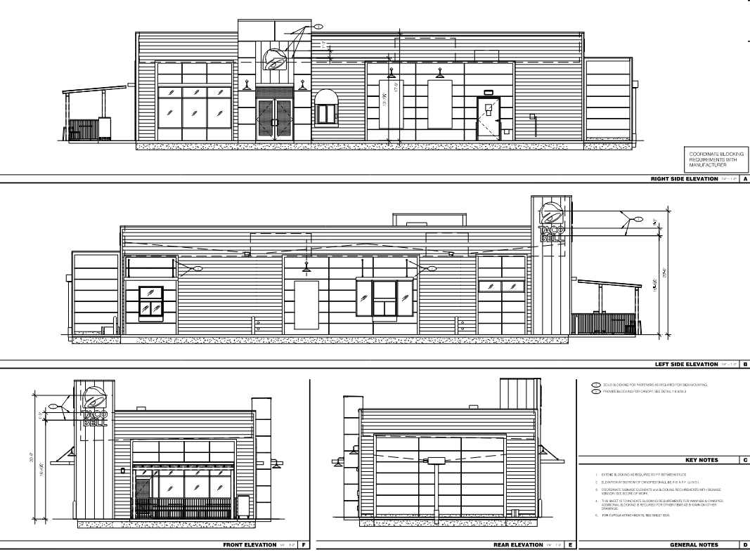
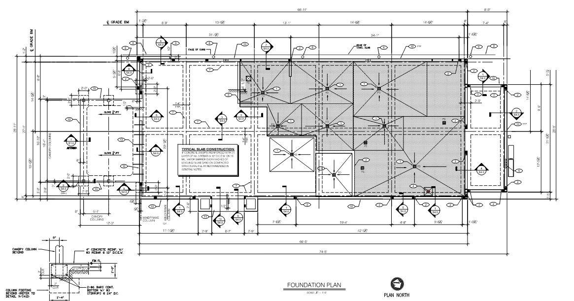
This project involved the design and development of a new Miami location for a well-established multinational Mexican fast-casual restaurant chain. Our team provided comprehensive Civil, Architectural and Structural design services, delivering coordinated drawings that met local Florida building codes and high-wind design requirements. The project reflects the client’s brand standards while adapting the design to site-specific and jurisdictional requirements. We continue to support this client on multiple locations nationwide, providing consistent, efficient, and scalable design solutions.

Previous
Previous

Mexican Fast-Casual Restaurant – Orlando, Florida

Next
Next

Home Remodel - Tampa, Florida